Año: 2005
Autores: Isabel Benito, Víctor Orive, Santiago Becerra

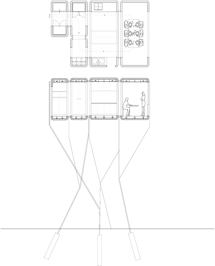
Se parte de la desmembración del programa básico residencial para estudiar nuevas posibilidades de relación entre las distintas piezas, así como distintas configuraciones sociales en base a principios de mínima huella ecológica para poder establecer en los nuevos desarrollos extensivos de las ciudades un nuevo equilibrio entre terreno liberado e infraestructuras








