Año: 2010
Autores: Isabel Benito, Carmen Pérez, Elena Verdú, Santiago Becerra

La solución propuesta consiste en un bloque aislado, en el que se resuelven 100 viviendas de 1, 2 y tres dormitorios, con trasteros y plazas de garaje. Las comunicaciones verticales del conjunto se resuelven en tres núcleos de comunicación.
El edificio propuesto ocupa la parcela casi en su totalidad, respetando la obligación de alineamiento a la calle Puerto de la Bonaigua. El acceso a los tres portales y a garaje se produce por esta calle, ya que el resto del perímetro del edificio es zona verde básica.
La planta baja se escalona para absorber el desnivel de la parcela, adaptando la misma cota de nivel los tres portales en planta primera. De este modo, ser respeta la altura máxima permitida hasta coronación (24m) proyectando una imagen potente de conjunto, sin escalonamientos.
Las viviendas se organizan alrededor de los núcleos, definiendo una franja central en el edificio donde se concentran los aseos y ascensores, dejando de éste modo mayor libertad para organizar el resto de espacios vivideros en fachada, donde se agrupan dormitorios salones y cocinas, éstas siempre con tendedero con vistas ocultas al exterior.
Composición de fachadas
Hacia la calle de acceso, el edificio, se presenta como un bloque limpio y homogéneo, únicamente horadado por las terrazas de viviendas. El bloque se ordena a través de los huecos de fachada. Se distinguen únicamente dos tipos de huecos, los de mayor tamaño, para iluminación y ventilación de salones y los más pequeños para el resto de estancias de las viviendas. A través del cerramiento de los tendederos podemos leer la división del edificio en tres portales diferentes.
La fachada hacia la zona ajardinada común, se ordena con el mismo tipo de huecos, pero en este caso, el bloque limpio y homogéneo, se mueve, transformándose, en bloques más pequeños que se desplazan hacia el exterior volando sobre la zona ajardinada o desaparecen creando grandes huecos, y haciendo que la fachada sea mucho más permeable.
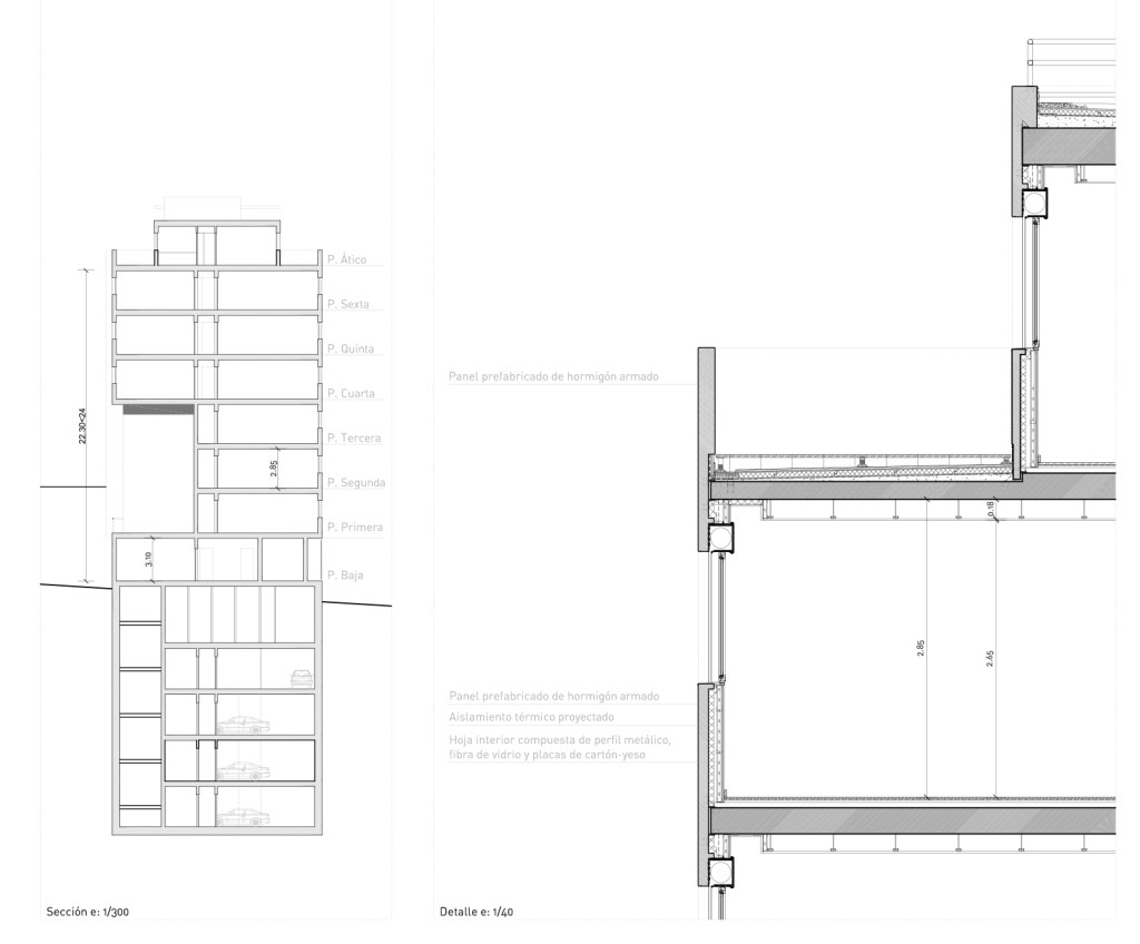
Sistema de cerramiento
El sistema de cerramiento propuesto se compone de elementos prefabricados, lo que contribuirá a reducir los plazos de ejecución.
Hacia el exterior la fachada se compone de grandes paneles prefabricados de hormigón armado. Estas piezas van trasdosadas con aislamiento térmico proyectado, una cámara de aire y tabiques con doble placa de cartón-yeso de 13 mm montados sobre guías metálica.





