Año: 2018
Autores: María Cervera, Santiago Becerra
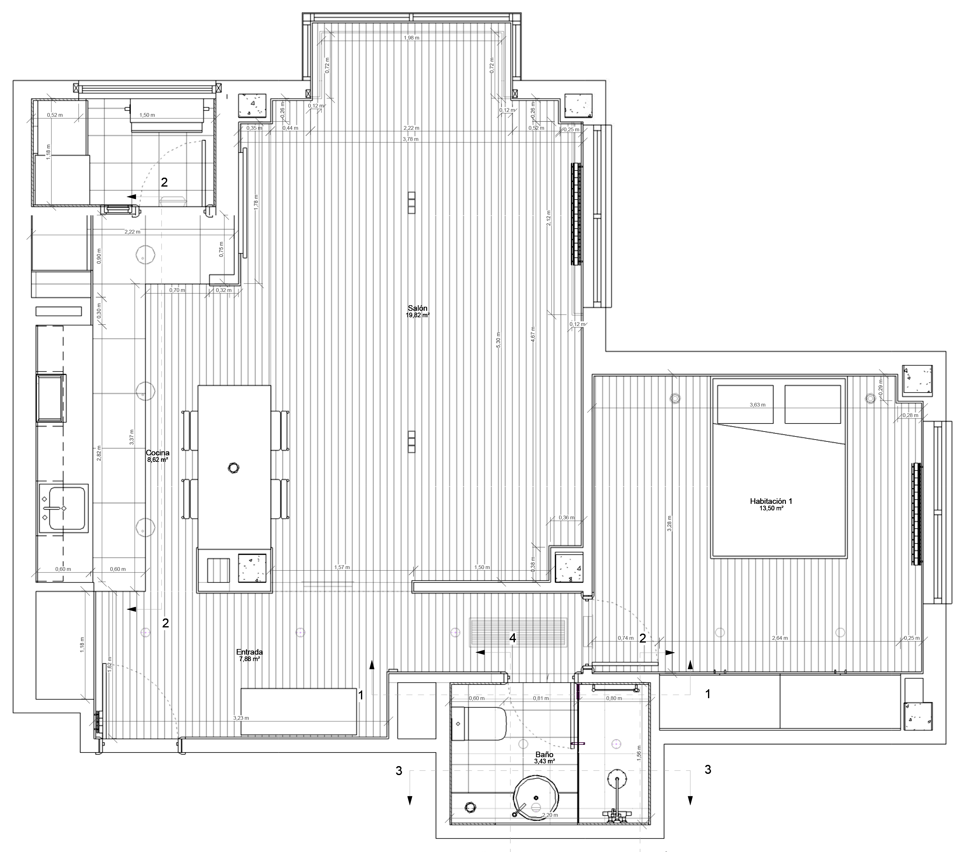
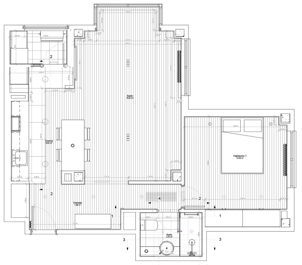
Reforma de un pequeño piso de un dormitorio en Sanchinarro consistente en unir visualmente los espacios de entrada, cocina y salón, para ubicar la mesa de comedor aprovechando parte del espacio de la antigua división, ganando sensación de espacio tanto para la cocina como para el salón, que se libera de la función de comedor pudiendo albergar una zona de trabajo en su lugar.






