Año: 2000
Autores: Fernando Borrego, Luis del Hoyo, Ignacio Borrego, Santiago Becerra

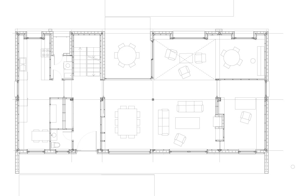
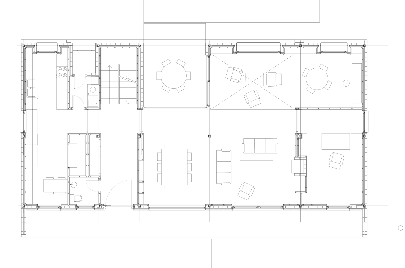
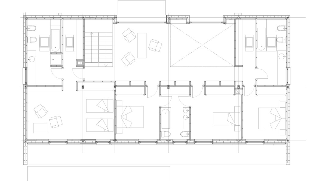
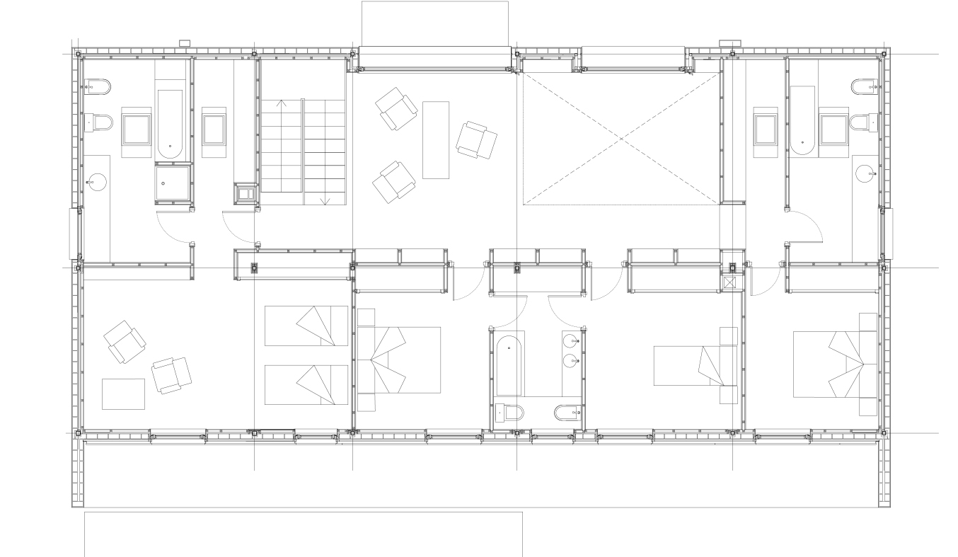
La vivienda se sitúa lo más cerca de la zona de protección del río Pisuerga que la normativa permite, ofreciendo un frente lo más amplio posible a ella, pese a la estrechez de la parcela, solo dejando libres los retranqueos. El objetivo es conseguir que la mayor parte de la casa participe de las vistas y del arbolado de ribera. Al coincidir las vistas con la orientación noroeste, los huecos se reducen a un gran ventanal que coincide con la doble altura para evitar pérdidas excesivas en invierno y un poco retranqueado para evitar el soleamiento del oeste en verano, mientras que al sur ofrece una fachada trasventilada de piedra local.








