Año: 2005
Autores: Santiago Becerra
Colaboradores: 3D3 Ingeniería

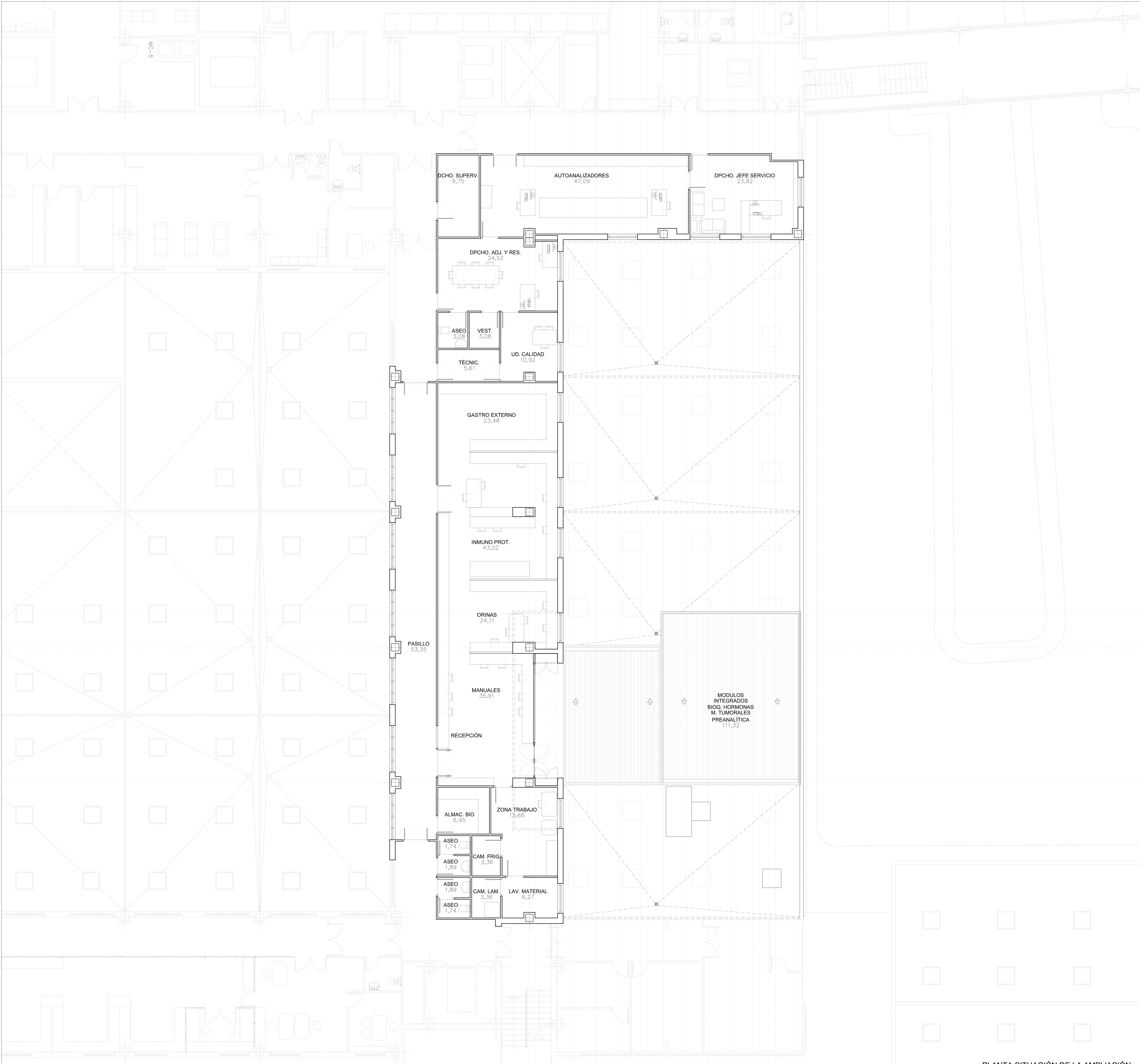
La ampliación servirá para alojar en su interior una máquina modular de preanalítica, que requiere un espacio diáfano con puestos de trabajo a su alrededor, y con conexión al laboratorio existente a través de una puerta doble que permita una climatización independiente.
El volumen de la ampliación se adapta en planta a la geometría definida por la estructura existente de la cubierta sobre la que se asienta, y en altura, se resuelve con dos cubiertas inclinadas rematadas por un lucernario que complementa la iluminación de trabajo proporcionada por los huecos regularmente distribuidos por la fachada.
Toda la construcción se resuelve con materiales sencillos y de fácil y rápido montaje, estructura de perfiles laminados de acero, y cerramiento de paneles de chapa metálica galvanizada con aislamiento intermedio formando un sistema tipo “sandwich” incluso en la cubierta.







