Año: 2008
Autores: Carmen Pérez, Isabel Benito, Elena Verdú, Santiago Becerra.
Colaboradores: Víctor Orive, Estudio Pérez Medina (Diseño gráfico), 3D3 Ingeniería (Estructura)
Primer Premio

MERCAMORFOSIS (Tres metamorfosis para un nuevo tipo de mercado)
METAMORFOSIS 1: DE GUSANO A MARIPOSA…
El Mercado tradicional se encuentra en un proceso de transformación, su estructura espacial ha quedado obsoleta y sabe que tiene que cambiar, pero aún no se ha decidido a hacerlo. Ha fijado la vista en los lujosos y llamativos centros comerciales, pero teme que al convertirse en uno de ellos pueda perder para siempre su carácter.
Detenerse en el momento adecuado.
La crisálida es el estado intermedio en una metamorfosis, posee características tanto de su origen como de su destino, pero también la belleza de lo que está en proceso de formación.
Del “plano” horizontal, indiferenciado y próximo del mercado tradicional a la “caja”, ensimismada y panóptica de los centros comerciales… Aún hay lugares intermedios.
El mercado tradicional se caracteriza por su proximidad y facilidad para relacionarse con el entorno y el peatón, pero su eficacia comercial se ha ido reduciendo con el paso del tiempo.
El centro comercial tiene los números a su favor, pero ha renunciado a su relación con la ciudad, le ha dado la espalda.
“Curvemos” pues, el plano del mercado.
De esta forma acercaremos su topología a la que ha demostrado ser más rentable, pero a través de operaciones estratégicamente dirigidas a no perder las virtudes evidentes de la configuración tradicional.

METAMORFOSIS 2: DE CALLE A PAISAJE…
Uno de los aspectos que más influyen en la viabilidad comercial es la capacidad del potencial comprador de localizar e identificar con rapidez el mayor número de destinos posibles de un solo vistazo, junto con la intuición de que podrá acceder a ellos con facilidad.
Compacidad, conectividad, continuidad… Son todos atributos comunes a las geometrías resultantes de aplicar sobre ellas operaciones topológicas. Ciencia, la Topología, que se ocupa de estudiar las posibilidades de deformación de los planos.
Paisaje fácil.
Los antes mencionados son, casualmente, los mismos atributos buscados para mejorar la rentabilidad del mercado, sin perder la proximidad ni la accesibilidad, pero superando la estructura convencional del mercado “de calles” para convertirlo en un paisaje dotado de una mayor complejidad y riqueza espacial. Una topografía que permita un reconocimiento inmediato e intuitivo del espacio del mercado.
Terreno de comerciantes.
Las deformaciones topológicas permiten además adaptarse a la topografía circundante y resolver los fuertes desniveles de la parcela, sin que el edificio deje más “huella” que la estrictamente necesaria para asentarse.
La intervención sobre el terreno existente se reduce exclusivamente a facilitar la accesibilidad, y esa continuidad topográfica, al modo de un terreno erosionado que reproduce huellas características de la dinámica de fluidos, ley que parece regir el movimiento casi aleatorio de los colectivos de personas a través de un espacio.
METAMORFOSIS 3: DE MSP A PMS…
El mercado ha sido un dinamizador social a lo largo de su historia, hasta el punto de llegar a inspirar novelas como “El vientre de París” publicada en 1873 por Émile Zola, donde se utiliza el mercado central de abastos como escenario para retratar la sociedad parisina de finales del s.XIX, a través de los ojos de Florent, inspector de pescado.
Dicho protagonismo se pretendía también a escala urbana, forzando el volumen a elevarse sobre el plano de uso utilizando la tecnología de la época, estructura metálica y vidrio…
Pero sin contenido.
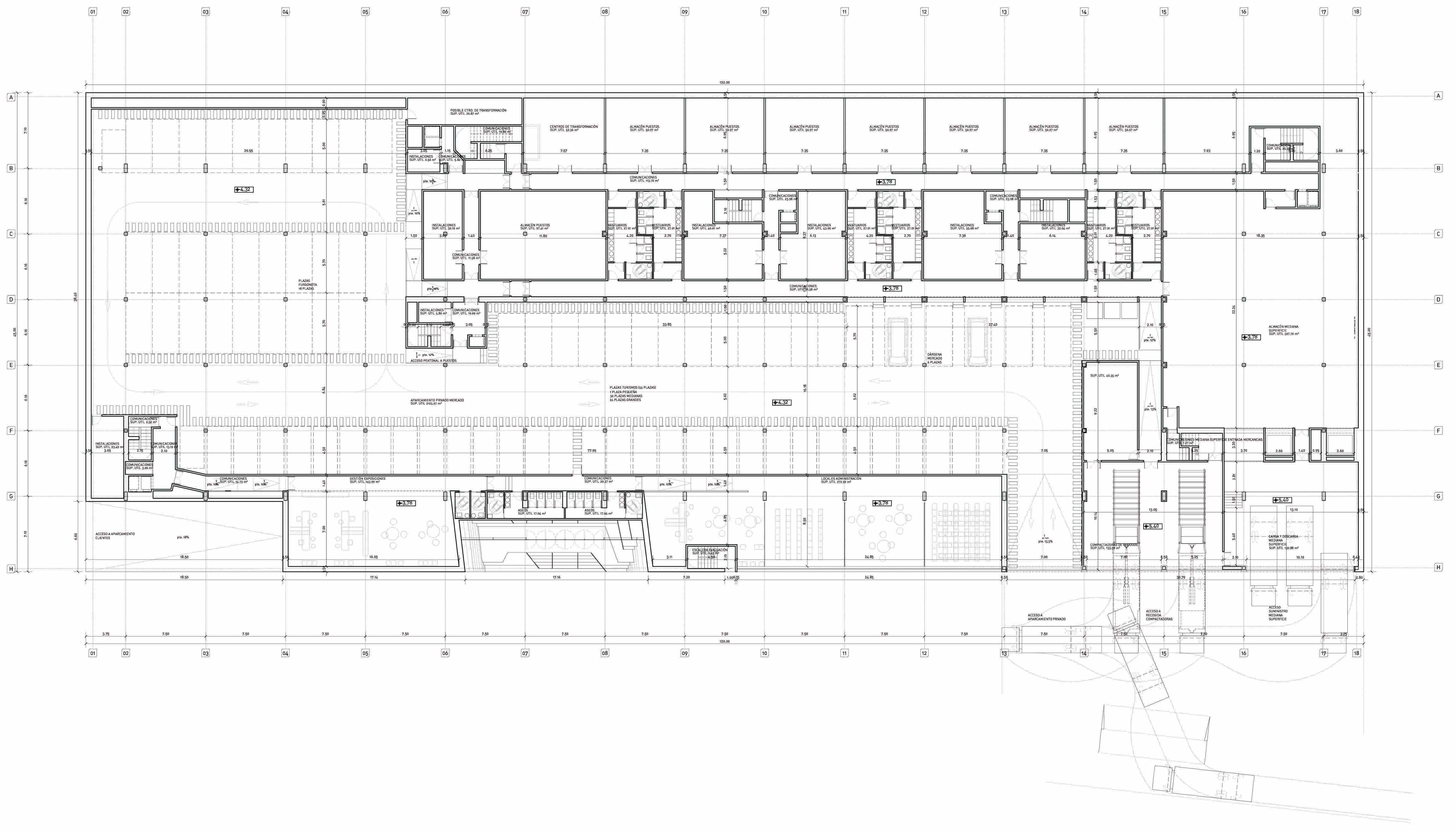
Al no poder sobrepasar el “techo comercial” de la pereza del comprador para subir más allá de la primera planta, el mercado ha ido enterrándose cada vez más para conseguir espacios de servicio, almacenaje y el cada vez más necesario aparcamiento, convirtiéndose en una especie de iceberg, que ha renunciado a su presencia urbana.
Reflotar el mercado.
¿Por qué no transformar esta situación en una oportunidad? Traslademos el aparcamiento al “espacio de oportunidad” generado entre el “techo urbanístico” y el “techo comercial”, de esta forma, no sólo conseguiremos que tenga la necesaria presencia para servir como hito urbano y foco de atracción urbana, sino que se genera un flujo no previsto en la dinámica comercial, que equilibra la afluencia a los usos situados en las partes altas.
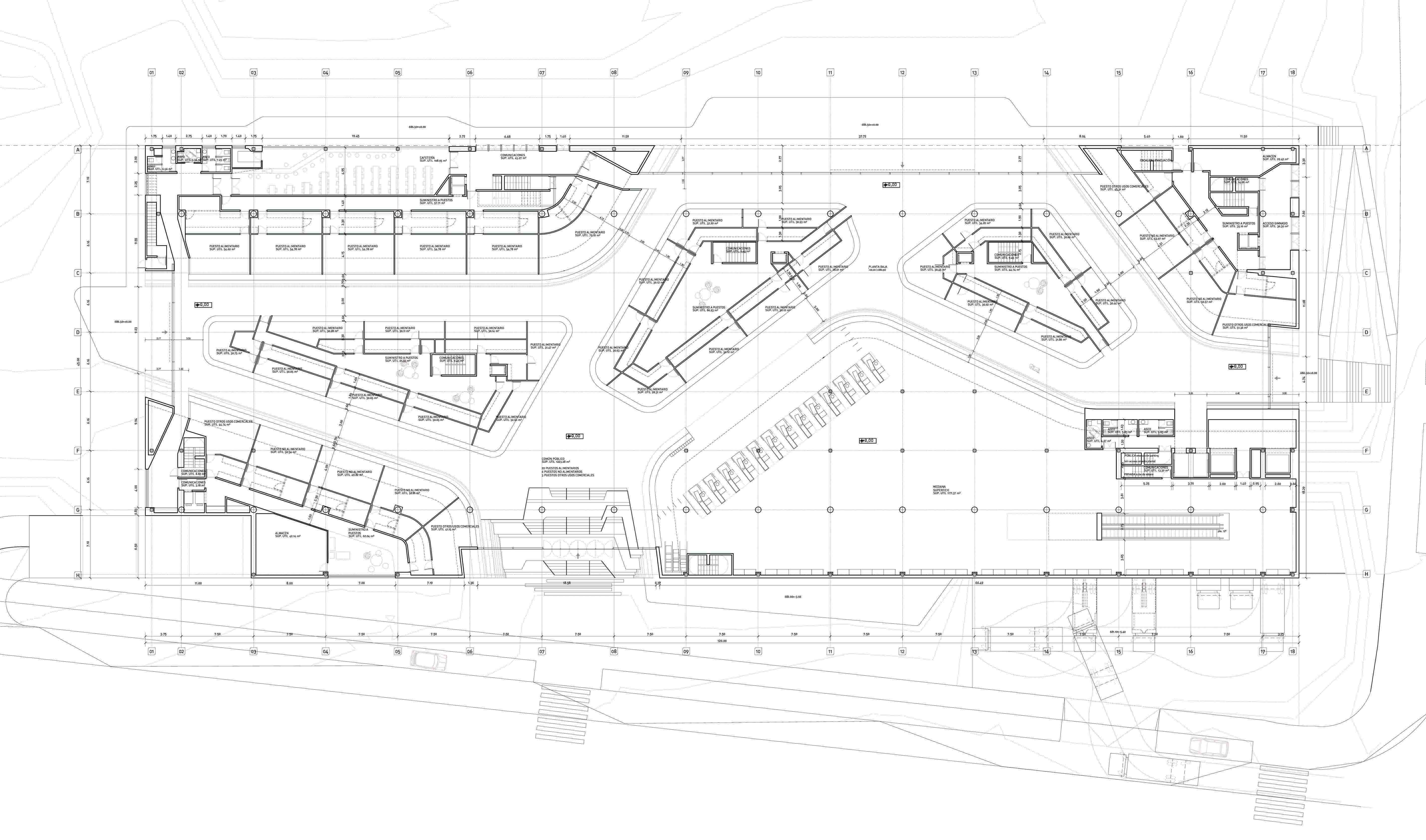
LOS PUESTOS
Se diferencian formalmente los puestos pequeños, agrupados en islas en la zona central, rodeados de las circulaciones principales de público, para favorecer su viabilidad ya que son los puestos más frágiles en este sentido. En cambio, los puestos de mayor tamaño, se alojan en las pendientes de la topografía, ocultando su gran volumen pero manteniendo visible toda la longitud del mostrador.
Para todos ellos se propone una rotulación conjunta con tipo de letra común (Berthold Akzidenz Grotesk Condensed), en dos pesos distintos con la intención de destacar la actividad frente al nombre propio de quien la ejerce, rescatando así de forma revisada, el criterio genérico manejado en los antiguos mercados. También como guiño nostálgico, la rotulación se coloca sobre una marquesina plegable que permite que el nombre del establecimiento permanezca visible aunque el puesto esté cerrado, y que integra también la iluminación de la mercancía.




















