Año: 2009
Autores: Elena Verdú, Isabel Benito, Carmen Pérez, Santiago Becerra

La solución adoptada se compone de seis bloques de dos alturas que se conectan de tres en tres, mediante pasarelas.
La agrupación de las viviendas se resuelve de manera que el espacio libre ajardinado en planta baja sea el máximo, permitiendo incluso la plantación de árboles de gran porte en algunas zonas de la parcela gracias al trazado de la planta sótano.
ACCESOS Y COMUNICACIONES
El acceso general al conjunto, tanto rodado como peatonal se realiza desde la rotonda situada al suroeste de la parcela.
El acceso rodado se hace a través de rampa de bajada a planta sótano y el acceso peatonal a través de un paso pavimentado situado junto a la garita de control de acceso.
Desde ahí se accede a los distintos portales a través de pasos pavimentados, dejando el resto de espacio libre como zona ajardinada.
Cada una de las agrupaciones de tres bloques tiene tres núcleos de comunicación compartidos (dos escaleras y un ascensor), conectados mediante pasarelas y dos individuales.
Los núcleos compartidos dan acceso a doce viviendas (cuatro por bloque), situándose las escaleras en los bloques exteriores y el ascensor en el bloque central. Los núcleos de comunicación individuales se encuentran en los portales situados en el frente de acceso a la parcela (suroeste) y su opuesto (noreste), y dan acceso a tres y cuatro viviendas en cada una de las agrupaciones. Esto dota de acceso por ascensor a todas las viviendas reduciendo considerablemente el número de aparatos elevadores a instalar.
Todos los núcleos llegan a garaje para hacer más cómodo el acceso a viviendas.

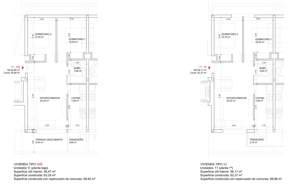
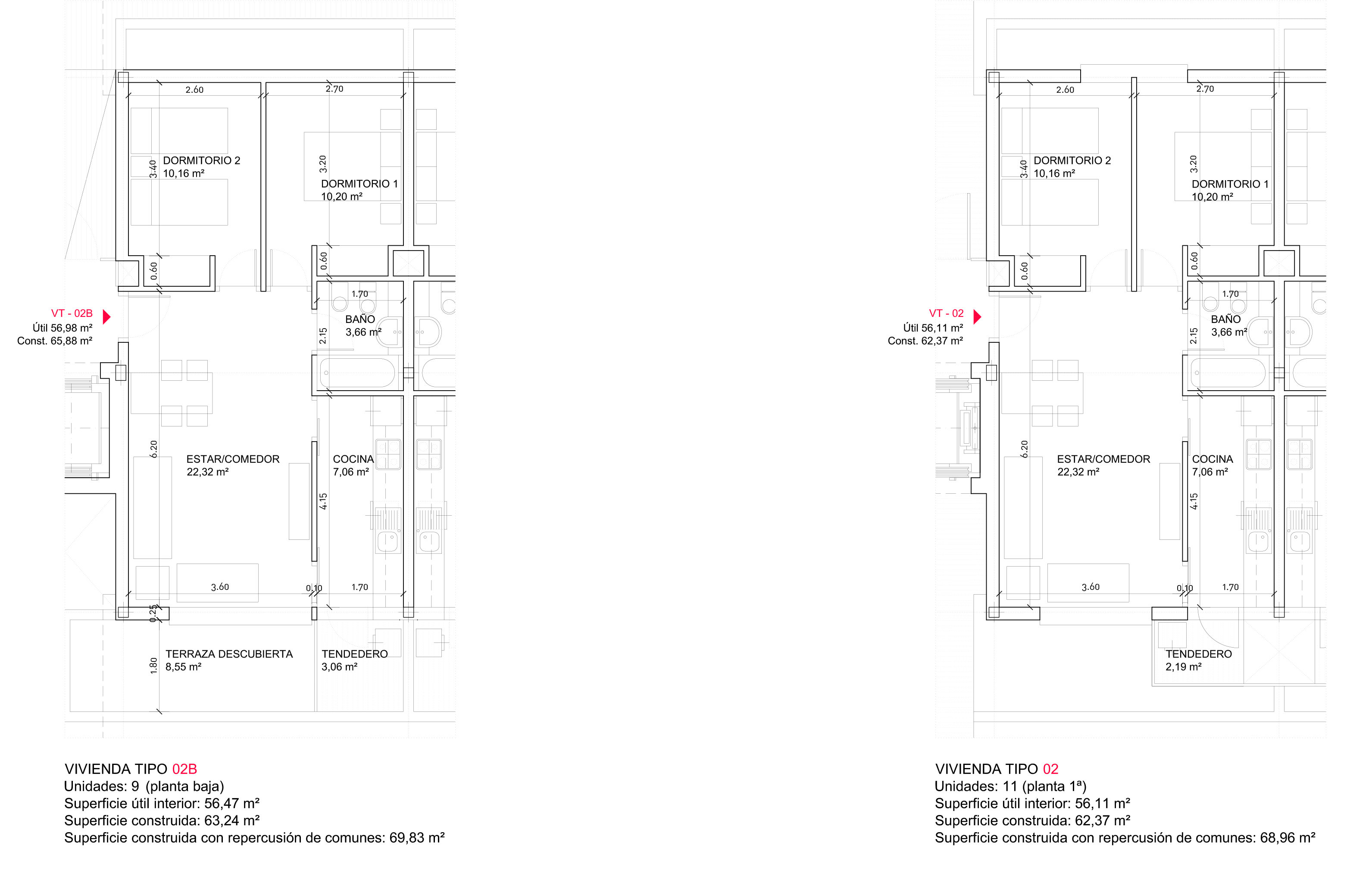
TIPOLOGÍA DE VIVIENDAS Y PROGRAMA
Las 81 viviendas son de dos dormitorios. Existen dos tipologías de vivienda diferentes, aunque muy similares entre sí, (las piezas de salón-comedor y cocina intercambian posición) la correspondiente a los bloques exteriores y la correspondiente a los bloques centrales, debido a las diferencias en el núcleo de comunicación.
Los espacios de circulación dentro de la vivienda son muy reducidos, lo que permite el aprovechamiento máximo de la superficie útil de la vivienda.
CONDICIONES HIGIÉNICAS Y BIOCLIMÁTICAS
El trazado de la planta sótano permite la plantación de árboles (de hoja caduca) de gran porte dentro de la urbanización lo que proporcionará estancias ajardinadas en sombra en los meses de verano.
Los bloques combinan zonas de cubierta aljibe (ajardinada), que permitirá el aprovechamiento del agua de lluvia, y zonas destinadas a la colocación de paneles solares.
Se buscarán apoyos al sistema centralizado de instalaciones, para reducir su consumo energético al máximo, tales como instalación solar térmica, prospecciones geotérmicas, etc.
La red separativa permitirá también el reciclado y aprovechamiento de las aguas grises.
La totalidad de las viviendas tiene ventilación cruzada y orientación noroeste, sureste, lo que garantiza una alta calidad del aire interior de la vivienda, además de una correcta iluminación de las diferentes estancias.
Los materiales utilizados serán no contaminantes en su proceso de fabricación y bajo desempeño medioambiental, maximizándose además el empleo de materiales reciclables y reciclados.







