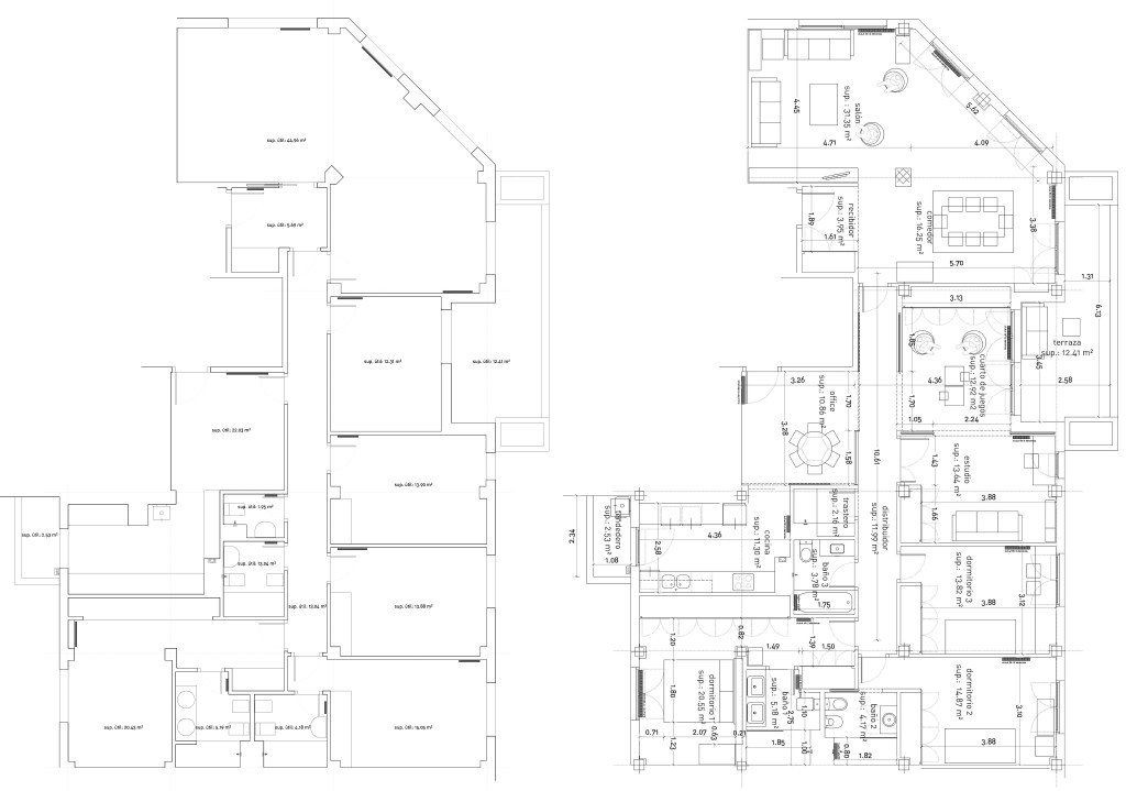
enero 23, 2012diciembre 31, 2020 REFORMA DE PISO EN CALLE SORZANO. MADRID Año: 2012 Autores: Isabel Benito, Elena Verdú, Santiago Becerra Reforma de vivienda existente con incorporación de sistema de calefacción y aire acondicionado. Comparte: Compartir en X (Se abre en una ventana nueva) X Compartir en LinkedIn (Se abre en una ventana nueva) LinkedIn Comparte en Facebook (Se abre en una ventana nueva) Facebook Me gusta Cargando...