Año: 2015
Autores: Santiago Becerra
Colaboradores: Juan Ramón Martín, Carlos Fernández, Pilar Hernández, Beatriz Inglés, José Agulló, José Jurado

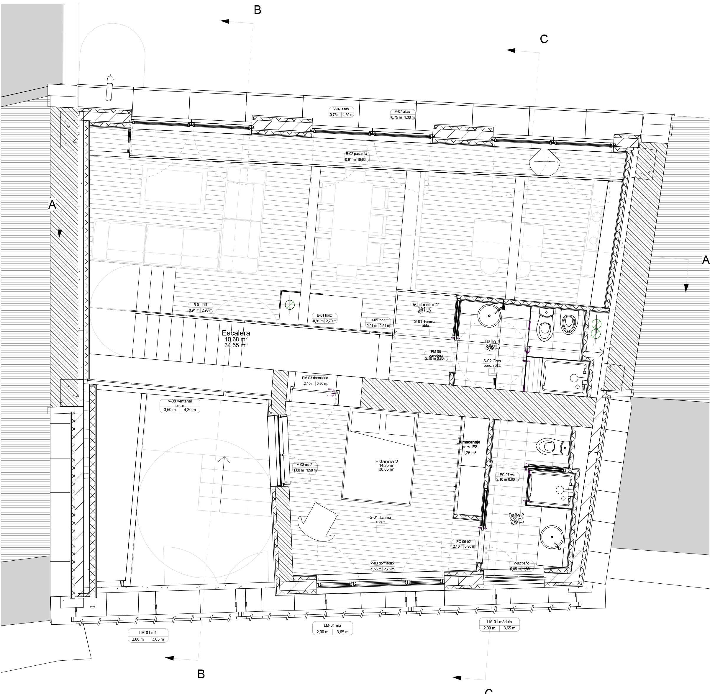
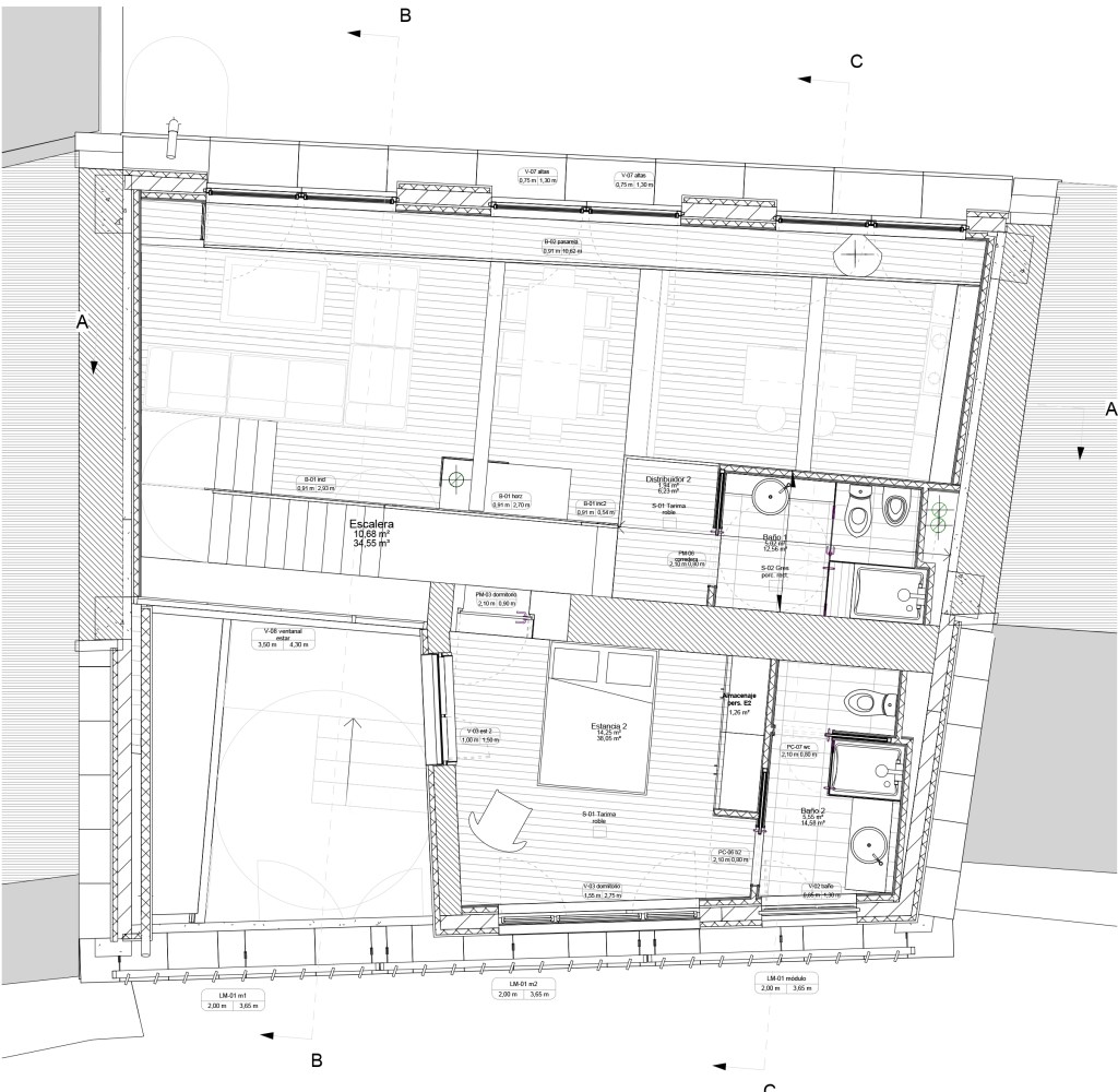
El proyecto consiste en recuperar como vivienda permanente la antigua vivienda familiar, abandonada en una aldea próxima a Santiago de Compostela. El estado de la construcción original es bastante complejo, a las distintas intervenciones, en distintas épocas y con distintas técnicas se suma un estado de abandono que hace complicado intervenir, con desplomes en los muros medianeros e interiores que requieren de reparación o estabilización si se pretende que la intervención sea duradera.
A pesar de que el grado de intervención es muy alto, ya que se necesita modificar también la posición de los forjados y una ampliación de volumen para hacer habitable la casa, se intenta no perder las cualidades características de la construcción original, manteniendo los muros de piedra como elementos estructurales y con presencia dentro de la definición de los espacios, así como recuperar la desaparecida cubierta de madera.





Las fachadas se mantienen, aunque realizando las modificaciones necesarias para permitir el uso adecuado a las condiciones de iluminación y ventilación actuales y manteniendo el carácter singular de cada una de ellas. En la fachada principal solo se desplazan los huecos para hacer habitable la planta baja (antes destinada al ganado) manteniendo las piezas de fábrica que los forman, mientras que en la fachada posterior, de cachotería continua y sin huecos previos, los huecos necesarios se recortan sobre el lienzo sin introducir piezas singulares, perfilando el perímetro con chapa de acero.



En el interior, se refuerza la estructura de las fachadas y los muros medianeros mediante un gunitado de hormigón y una viga de coronación para poder desmontar los muros interiores, rehacer la cimentación para desconectarlos del contacto directo con el terreno (bajo la casa hay un curso de agua superficial) reconstruirlos corrigiendo los desplomes en su posición original y limpiando la piedra de las sales adquiridas a lo largo de los años de manera que puedan tener presencia en los espacios interiores sin comprometer el confort.










