Año: 2018
Autores: María Cervera, Santiago Becerra

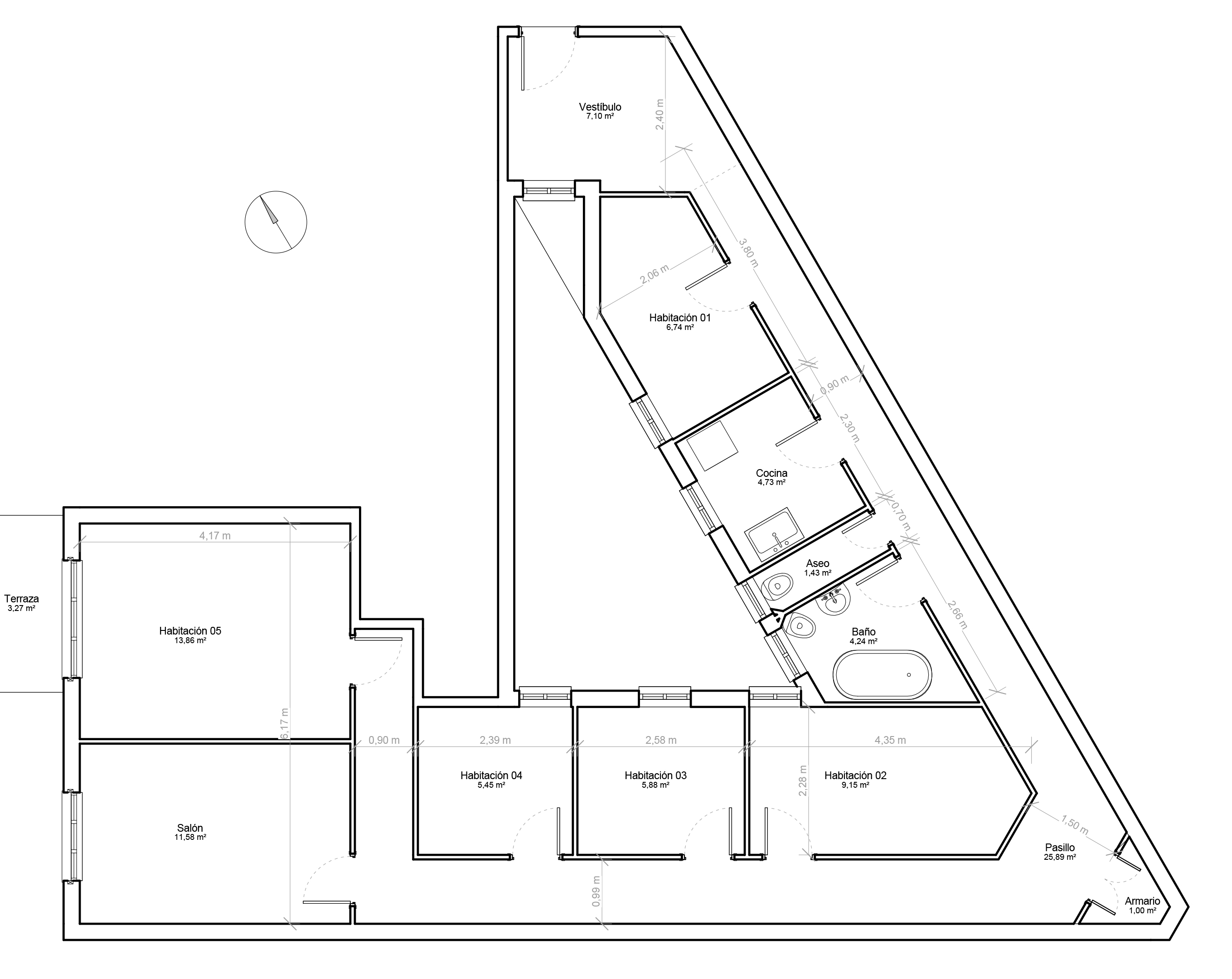
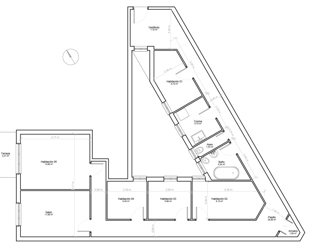
Tras analizar las necesidades planteadas por la cliente, y tras una visita y toma de datos, se establecen las estrategias básicas de actuación consistentes en recuperar y restaurar aquellos elementos más característicos de la época en la que se construyó el edificio (1925) y que aún se conservan, tales como herrajes, puertas y ventanas (actualizando los vidrios a vidrios con cámara) los suelos de madera, aquella parte del solado cerámico en mejor estado, objetos singulares como la pila de mármol o la bañera de fundición y las molduras de escayola con mínimas modificaciones.
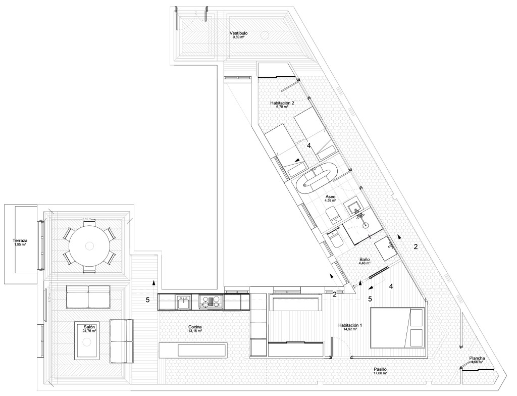
La distribución del piso hace que el recorrido del pasillo sea excesivo, por lo que se propone unir el Salón con el último dormitorio y ampliar hacia el dormitorio anterior para trasladar allí la cocina y dar continuidad a ambos espacios, dando la sensación de que el pasillo termina mucho antes. También se establece el dormitorio principal con un vestidor y un baño integrados (usando el espacio aproximado de los antiguos baños de la casa) a continuación de la cocina, usando la esquina y abriéndola visualmente con un hueco continuo en la esquina, desde la altura del dintel de las puertas hasta una altura que permita intimidad, de manera que la luz de las ventanas de fachada pueda llegar al pasillo y se vea la continuidad del techo desde el pasillo hacia el interior del dormitorio. De esta manera, se concentra la parte de vida habitual de la casa en la zona más cercana al salón y más alejada de la entrada, limitando los desplazamientos a lo largo del pasillo.
El segundo baño se plantea en la zona de la antigua cocina de la casa, recuperando el antiguo fregadero de una pieza de mármol como lavamanos para el baño principal y manteniendo e integrando la fresquera de la fachada. También se amplia el primer dormitorio existente hacia la entrada para conseguir dotarlo de un armario empotrado.










